£130,000
Perthshire Grove, Buckshaw Village, Chorley

Perthshire Grove, Buckshaw Village, Chorley

£130,000
2 Bedrooms
2 Bathrooms
1 Receptions

Features

Property Features

  • TOP FLOOR APARTMENT
  • STUNNING GARDEN VIEWS
  • JULIETTE BALCONY
  • TWO BEDROOMS
  • LOUNGE DINING ROOM
  • SPACIOUS KITCHEN
  • COMMUNAL GARDENS
  • ALLOCATED PARKING
  • VIEWINGS ADVISED
  • NO ONGOING CHAIN

Description

Full Details

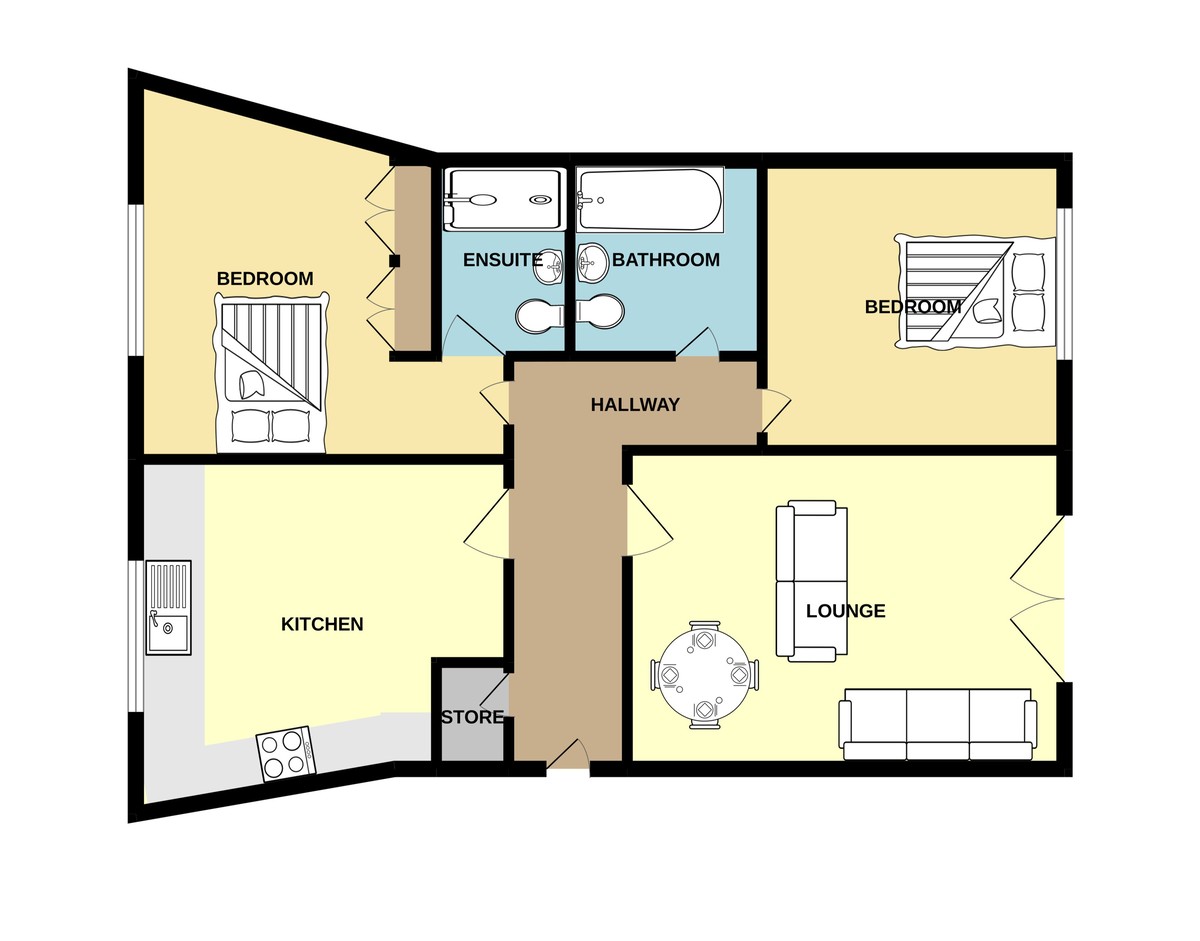
COMMUNAL ENTRANCE Accessed via a secure communal entrance with intercom entry system. The apartment is positioned on the top floor, offering privacy and elevated views.

ENTRANCE HALLWAY Welcoming entrance via a solid wooden front door into a hallway finished with laminate flooring. Features include a ceiling light point, wall-mounted heater, and solid wood doors leading to all principal rooms and a useful storage cupboard.

LOUNGE DINING ROOM 17' 1" x 12' 0" (5.21m x 3.66m) A generously proportioned living and dining space, centred around a feature fireplace with electric fire insert. The room benefits from carpet flooring, ceiling lighting, and double-glazed patio doors opening onto a Juliet balcony, enjoying pleasant views over the landscaped communal gardens.

KITCHEN/BREAKFAST ROOM 10' 9" x 10' 3" (3.28m x 3.13m) A well-appointed and spacious kitchen fitted with a range of beech wall and base units. Includes tiled flooring, downlighting, and a comprehensive range of integrated appliances comprising washer/dryer, fridge/freezer, dishwasher, single electric oven, and four-ring electric hob with extractor above. Double-glazed window to rear aspect.

BEDROOM ONE 14' 4" x 13' 4" (4.38m x 4.07m) A substantial double bedroom with double-glazed window, radiator, and ceiling light point. A solid wood door provides direct access to the en-suite shower room.

ENSUITE SHOWER ROOM Stylish three-piece suite comprising a fully tiled double shower enclosure, WC, and wash hand basin. Finished with tiled flooring and recessed downlighting.

BEDROOM TWO 14' 4" x 10' 5" (4.39m x 3.18m) Another spacious double bedroom with double-glazed window to rear aspect, electric wall heater, and ceiling light point.

FAMILY BATHROOM Well-presented three-piece bathroom suite comprising bath, WC, and wash hand basin. Finished with tiled flooring, recessed downlighting, and extractor fan.

LOFT There is a loft that is boarded and there is a ladder and light.

COMMUNAL GARDENS Beautifully maintained communal gardens with mature planting, well-stocked borders, and neatly kept lawns, providing an attractive and peaceful setting.

LOCATION Buckshaw Village is ideally located for commuting, with easy access to Preston, Manchester, and Blackpool via the M6, M61, and M55 motorways. The newly opened Buckshaw Village Parkway train station provides direct links to Manchester Piccadilly, Victoria, and Preston. Within walking distance, you'll find Tesco, Aldi, an Italian restaurant, coffee shops, barbers, and a variety of takeaways. For dining out, the War Horse Pub and the Harvester are popular with young families. The village also offers a community centre hosting a range of activities, a primary school, doctors' surgery, and dentist. The Buckshaw Hub provides a brand-new nursery, children's swimming pool, hair salon, and café, making this a village that truly caters to all ages. With its excellent amenities and convenient transport links, Buckshaw Village has everything you could need for modern family life.

MORTGAGES If you would like a free mortgage consultation our financial adviser will be able to meet with you, discuss your requirements and to assess your mortgage capability. You will receive professional and independent mortgage advice along with any other associated services.

Floorplans

Interested? Book a viewing.

Like the look of this property? Why not get in touch by using our online booking tool. Simply click the link below and follow the steps outlined to arrange a time with one of the Redrose team.

Like the look of this property?

Like the look of this property and would like a viewing but your property isn’t on the market yet. No problem. Click the link below and ask the Redrose team for a valuation.

Request a FREE VALUATION

Book a valuation to see how much your property is worth.

=

Apply for free Mortgage Advice

Apply for free mortgage advice by completing the form below.

Contact Us

Complete the form below to get in touch with our team.

Sign up to Our Newsletter

Join our mailing list to receive our latest property news
Privacy Overview

This website uses cookies so that we can provide you with the best user experience possible. Cookie information is stored in your browser and performs functions such as recognising you when you return to our website and helping our team to understand which sections of the website you find most interesting and useful.

This website also uses Google Analytics to collect anonymous information such as the number of visitors to the site, and the most popular pages.

By continuing to use this website, you agree to their use.